St. Mary’s Basilica Project
We are working with archaeologists at DATA Investigations/Fairfield Foundation to investigate the ancestry of individuals whose burials were uncovered during renovation work at St. Mary’s Church in Norfolk, Virginia. Together with Dr. Raquel Fleskes, we will conduct an ancient DNA analysis with the human remains to learn more about the ancestry of these individuals. For various reasons (see below), there are not a lot of early church records, including burial records, that will help to identify these persons.

“Market Square, Norfolk”, an engraving from Henry Howe’s Historical Collections of Virginia (1845). The image was captioned: “Market Square, Norfolk: In the centre of the view is shown the market, and in the distance, on the opposite bank of Elizabeth River—the common harbor of Norfolk and Portsmouth—a part of the town of Potsmouth.” Source: XXXX
There has been a Catholic congregation in Norfolk since shortly after the American Revolution (ca. 1790s). The oldest Catholic parish community in the diocese, St. Mary’s has its roots among French immigrants fleeing persecution during the French Revolution. Immigrants from Ireland, Haiti and the Dominican Republic were also some of its first congregants. By the turn of the 19th century, the congregation had built a chapel on the present location of the basilica, and in 1842 built a church on this site.
In 1856, the church was burned by the “Know-Nothing” party, a political group known for its anti-Catholic and anti-immigrant beliefs, shortly after the Yellow Fever epidemic that swept Norfolk.

Anti-immigrant cartoon showing two men carrying a ballot box. Source: Everett Collection Historical / Alamy Stock Photo.
Following the destruction of this church, the Catholic church constructed the basilica in 1857-58 on top of the burial ground, and named it St. Mary of the Immaculate Conception. A photo of the basilica appears below.

St. Mary’s Basilica. Front entrance view. Photo credit: T.G. Schurr
Bioarcheology of Burials at St. Mary’s Basilica
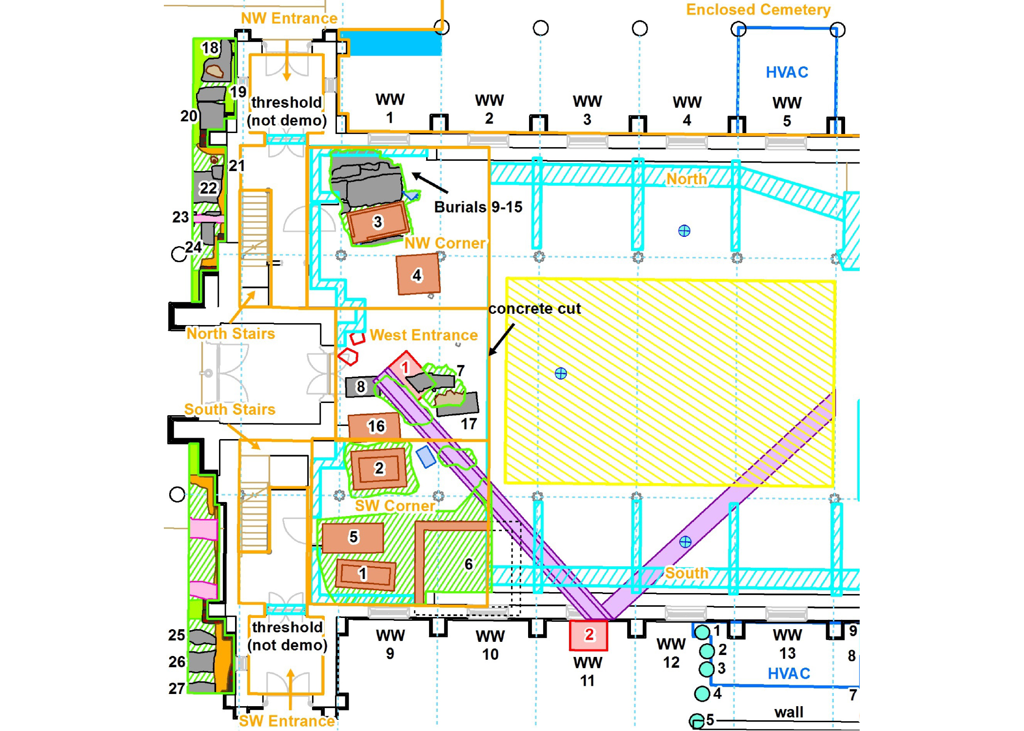
Recent excavations undertaken after the initial renovations of the church have uncovered a number of crypts/vaults which contains intact human remains. These appear to be part of the 1790s-1850 cemetery associated with the original St. Patrick’s church. Dozens more burials were detected beneath the floor of the basilica through the use of ground penetrating radar, affirming the history of the construction of the basilica.
The bioarchaeological and ancient DNA analyses will focus on several of the burials revealed by the renovation process. Photos of the excavations undertaken in 2020 and the burial map of the area being excavated are shown below.

Excavation of Graves Inside Basilica. Elizabeth Donison, Samantha Berman and Jane Kim excavating a grave. Photo credit: T.G. Schurr

Removing Human Remains from a Grave in the Basilica. Dr. Dave Brown is lying across the crypt opening watched by, from left-to-right, Keenan Hurdle, Elizabeth Donison and Raquel Fleskes. Photo credit: T.G. Schurr

Using Ground Penetrating Radar to Map Grave Contours. Dr. Dave Givens holds the GPR unit, Jane Kim scans the grave surface, with Raquel Fleskes observing the process. Photo credit: T.G. Schurr

Burial map drawn after the initial removal of soil around them burials. The location of the of seven individuals who were disinterred for further bioarchareological and genetic study are shown on this map.
Ancient DNA Analysis
Conducted ancient DNA with seven individuals disinterred from the burials under St. Mary’s Basilica.
Community Presentation of Ancient DNA Findings
We presented the results of the ancient DNA analysis to the St. Mary’s congregation on 22 November 2024. Drs. Dave Brown, Raquel Fleskes, and T.G. Schurr provided details about the archaeological research conducted at the church, the osteological analysis of the remains of the seven individuals (details provided by Dr. Dana Kollmann), the historical background for the study, and the ancient DNA evidence for the decedents.

Flyer for presentation of ancient DNA results for St. Patrick’s burials at St. Mary’s Basilica. Photo credit: T.G. Schurr
Publications
Fleskes RE, Brown D, Kollmann D, Budner H, Paulson KY, Pollard P, Brauckman K, Philips J, Masur L, Curran J, Schurr TG. 2024. Bioarchaeological and genetic analysis of burials at St. Mary’s Basilica reveals diverse ancestry of 19th century parishioners (In preparation).
Masur LE, Fleskes RE, Schurr TG, Brown D, Harpole T, Pollard P, Alukonis L, Horsley T, Jacobe S, Hayes R, Taylor M, Lukezic C. 2024. “Let perpetual light shine upon them”: Forgetting and remembering segregated Catholic cemeteries. Amer Antiq (In review).
More Information
See the article on the Know Nothing Party in the 26 January 2017 issue of the Smithsonian Magazine (https://www.smithsonianmag.com/history/immigrants-conspiracies-and-secret-society-launched-american-nativism-180961915/) for more information about this group.
Laboratory of Molecular Anthropology
University of Pennsylvania
421 University Museum
3260 South Street
Philadelphia, PA 19104-6398
Tel: 215-573-2656

FOLOW US: